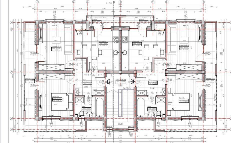
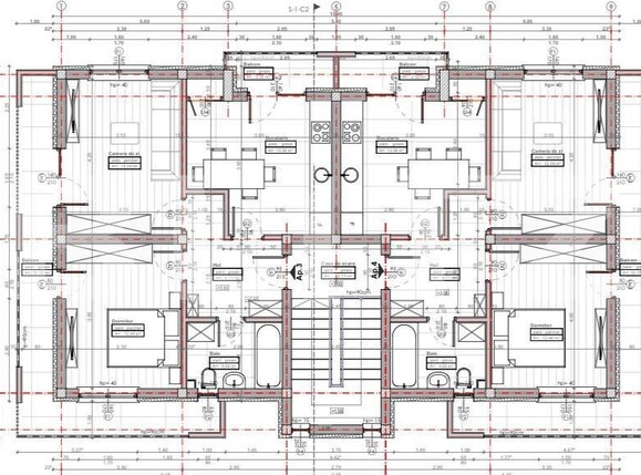
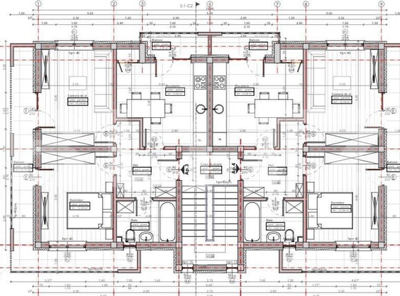
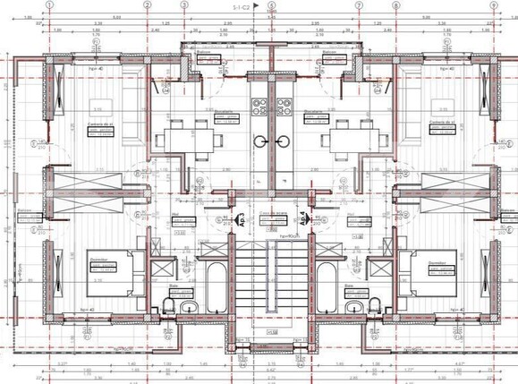
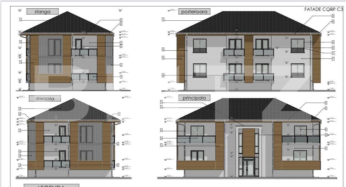
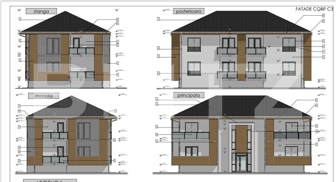
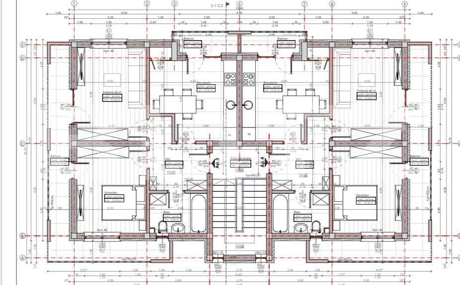
Apartament cu 2 camere, etajul 3 din 4, zona linistita, Gheorgheni
Anunță-mă când scade prețul
Trimite oferta de preț
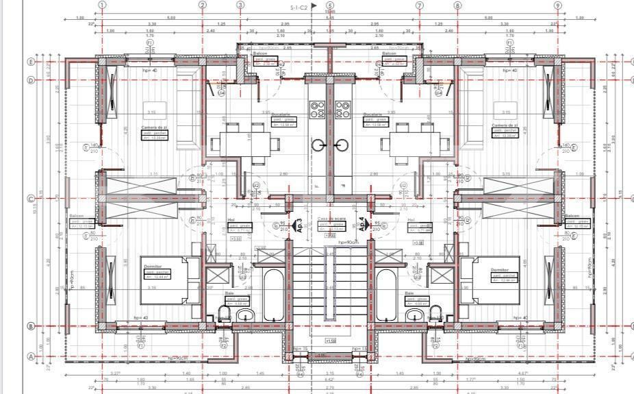
Nr. camere: 2
Suprafață utilă: 51 mp
Nr. băi: 1
Etaj: 1 /1
Tip compartimentare: Decomandat
Vechime apartament: Nou
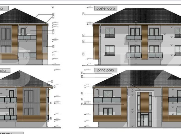
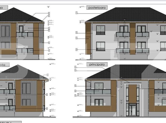
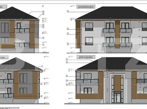
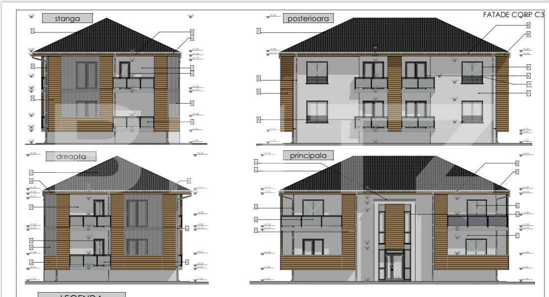
Tip imobil: Casă - vilă
Dotări: Mobilat/utilat
Anul construcției: 2022
Tip finisaj: Modern/lux
Evoluție Indice Blitz:
Apartament semidecomandat complet mobilat si utilat, parcare inclusa, zona Terra
Apartament decomandat cu 2 camere, 41 mp utili, parcare inclusa, zona Terra
Link-uri utile
Linkuri rapide filtrate după cele mai căutate zone și numărul de camere

