Apartament modern cu 3 camere, terasă spectaculoasă de 31 mp – zona Vivo Mall
Oferta accesata nu mai este disponibilă.
Poți vedea oferte din aceeași categorie sau poți contacta agentul pentru o oferta personalizată.
VEZI OFERTE SIMILARE
Apartament modern cu 3 camere, terasă spectaculoasă de 31 mp – zona Vivo Mall

Locuința viitorului tău | 3 camere 64,2 mp + Terasă 67,26 mp | Zonă de Top Cluj
Linkuri rapide filtrate după cele mai căutate zone și numărul de camere
ID: BLITZ 86529AV
Cartier: Andrei MureşanuPreț/mp: 3.383 €
Actualizat: 23.05.2022
Zona: Calea TurziiRata lunară: 915,82 €
Anunță-mă când scade prețul
Trimite oferta de preț
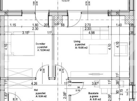
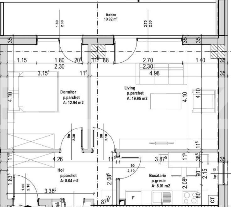
Nr. camere: 2
Suprafață utilă: 53.17 mp
Nr. băi: 1
Etaj: 2 /7
Locuri de parcare: 1 , Subteran
Boxă la subsol: Nu
Tip compartimentare: Decomandat
Vechime apartament: Nou
Tip imobil: Bloc de apartamente
Dotări: Modern/lux
Anul construcției: 2019
Tip finisaj: Modern/lux
Materiale construcție: Beton, Cărămidă
Modalitate vânzare: Credit bancar, Cash
Link-uri utile
Linkuri rapide filtrate după cele mai căutate zone și numărul de camere