Apartament cu 2 camere, modificat, parter
Oferta accesata nu mai este disponibilă.
Poți vedea oferte din aceeași categorie sau poți contacta agentul pentru o oferta personalizată.
VEZI OFERTE SIMILARELinkuri rapide filtrate după cele mai căutate zone și numărul de camere
Anunță-mă când scade prețul
Trimite oferta de preț
Nr. camere: Garsonieră
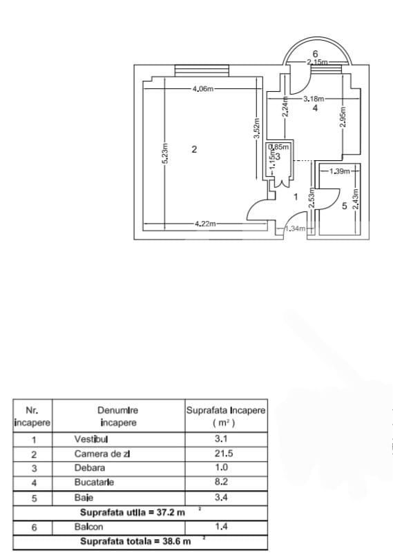
Suprafață utilă: 38 mp
Nr. băi: 1
Etaj: 1 /7
Boxă la subsol: Nu
Tip compartimentare: Decomandat
Vechime apartament: Vechi
Tip imobil: Bloc de apartamente
Dotări: Mobilat/utilat
Anul construcției: 1995
Tip finisaj: Renovabil
Materiale construcție: Beton
Modalitate vânzare: Cash
Link-uri utile
Linkuri rapide filtrate după cele mai căutate zone și numărul de camere