Casă P+1 în stil mediteranean, Green City – 1 Decembrie
Oferta accesata nu mai este disponibilă.
Poți vedea oferte din aceeași categorie sau poți contacta agentul pentru o oferta personalizată.
VEZI OFERTE SIMILARELinkuri rapide filtrate după cele mai căutate zone și numărul de camere
Anunță-mă când scade prețul
Trimite oferta de preț
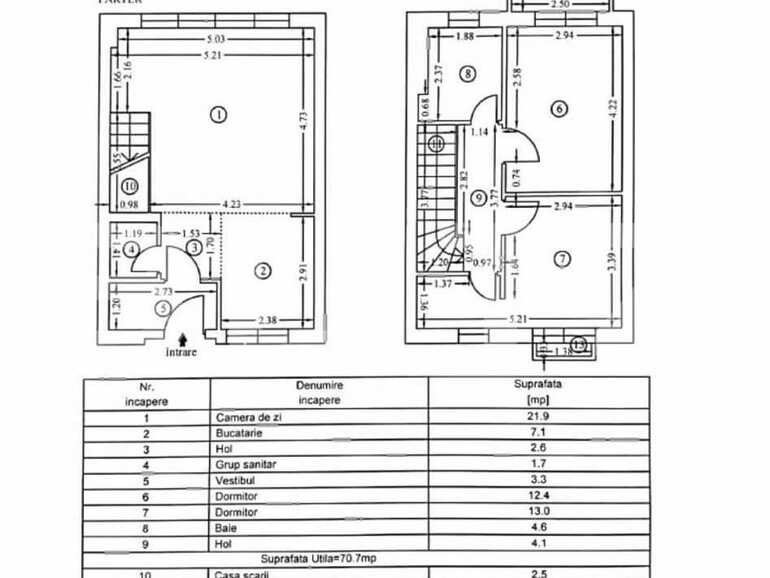
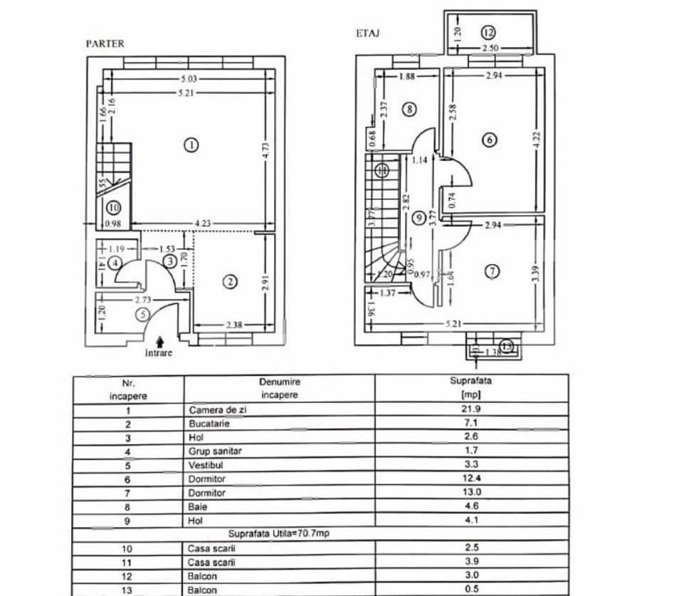
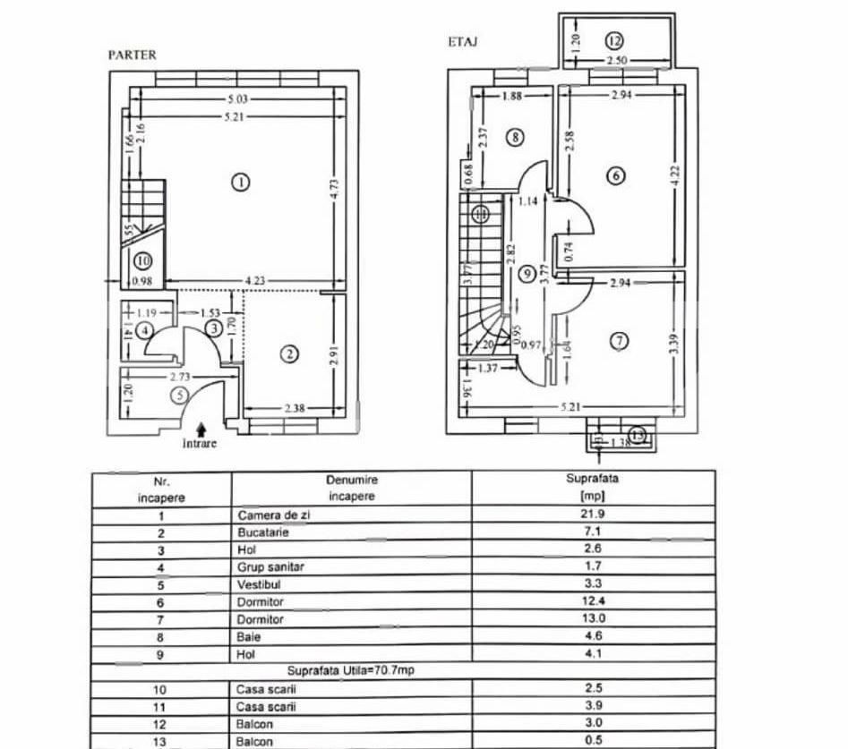
Suprafață casă: 70 mp
Teren: 120 mp
Număr de camere: 3
Nr. bucătării: 1
Nr. băi: 2
Nr. balcoane: 2
Niveluri: Parter, Etaj 1
Locuri de parcare: 2
Vechime casă: Nouă
Destinație: De locuit
Dotări: Mobilat/utilat
Tip finisaj: Finisat
Materiale construcție: Cărămidă
Tip acoperiș: Țiglă
Modalitate vânzare: Credit bancar, Cash
An construcție: 2020
Link-uri utile
Linkuri rapide filtrate după cele mai căutate zone și numărul de camere