blitz logo
favorites

black arrow right Oferta accesata nu mai este disponibilă.

Poți vedea oferte din aceeași categorie sau poți contacta agentul pentru o oferta personalizată.

VEZI OFERTE SIMILARE

LINK-URI UTILE

Linkuri rapide filtrate după cele mai căutate zone și numărul de camere

Apartamente de vânzareApartamente de vânzare DecebalApartamente de vânzare 4 camereApartamente de vânzare Decebal 4 camereApartamente de vânzare Decebal, zona Decebal
Apartament de vânzare 4 camere Decebal - 110605AV | BLITZ București | Poza1
Apartament de vânzare 4 camere Decebal - 110605AV | BLITZ București | Poza1
Apartament de vânzare 4 camere Decebal - 110605AV | BLITZ București | Poza1

Apartament de 4 camere, 106,90 mp, decomandat, bdl Decebal

ID: BLITZ 110605AV

Cartier: Decebal

Preț/mp: 2.424 €

Actualizat: 31.10.2023

Rata lunară: 1.221,77

Agent

    Acest anunț este verificat de către agent

    Te interesează ofertă? Programează o vizionare!
    Vă rugăm să completați chenarul cu informațiile cerute pentru a continua

    240.000249.000 € (- 9.000 € )

    Trimite ofertă de preț

    Acest anunț este verificat de către agent

      €

    Nr. camere: 4

    Suprafață utilă: 99 mp

    Nr. băi: 2

    Nr. balcoane: 2

    Etaj: 1 /7

    Locuri de parcare: 1

    Boxă la subsol: Nu

    Tip compartimentare: Decomandat

    Vechime apartament: Vechi

    Tip imobil: Bloc de apartamente

    Dotări: Nemobilat

    Anul construcției: Inainte de 1990

    Tip finisaj: Finisat

    Materiale construcție: Beton, Cărămidă

    Modalitate vânzare: Credit bancar, Cash

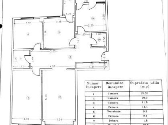
    BLITZ, vă propune spre cumpărare un apartament de 4 camere, decomandat, compartimentat efecient : 1 livingroom ( 20,20mp ), 3 dormitoare ( 19 mp/ 11,60 mp/11,10 mp ), vestibul 17,70 mp, bucatarie inchisa 9,90 mp, 2 grupuri sanitare 3 .80 mp / 2,40 mp, spatii depozitare, 1 logie si 1 balcon. Blocul este construit in anul 1992, stradal si are regimul de inaltime P+7E. Acces imediat la mijloacele de transport in comun. In apropiere sunt centre comerciale, unitati de invatamant, sanitare, bancare, spatii de agrement, spatii de joaca pentru copii. Loc de parcare. Va invitam cu drag la vizionare!

    Agent

    Apartamentul este intr-o zona de referinta a Bucurestiului, ideal pentru a locuii o familie sau invest cu randament imediat

    Link-uri utile

    Linkuri rapide filtrate după cele mai căutate zone și numărul de camere

    black friday
    Sună acumScrie mesaj
    Inchide
    X

    Te interesează apartamente de vânzare în București?

    Lasă-ne datele tale de contact şi te vom consilia în alegerea proprietăţii potrivite!