Apartament 5 camere, 156 mp, zona Piata Amzei
Oferta accesata nu mai este disponibilă.
Poți vedea oferte din aceeași categorie sau poți contacta agentul pentru o oferta personalizată.
VEZI OFERTE SIMILARELinkuri rapide filtrate după cele mai căutate zone și numărul de camere
ID: BLITZ 97211AV
Cartier: Bucurestii NoiPreț/mp: 2.489 €
Actualizat: 19.05.2023
Rata lunară: 1.165,77 €
Anunță-mă când scade prețul
Trimite oferta de preț
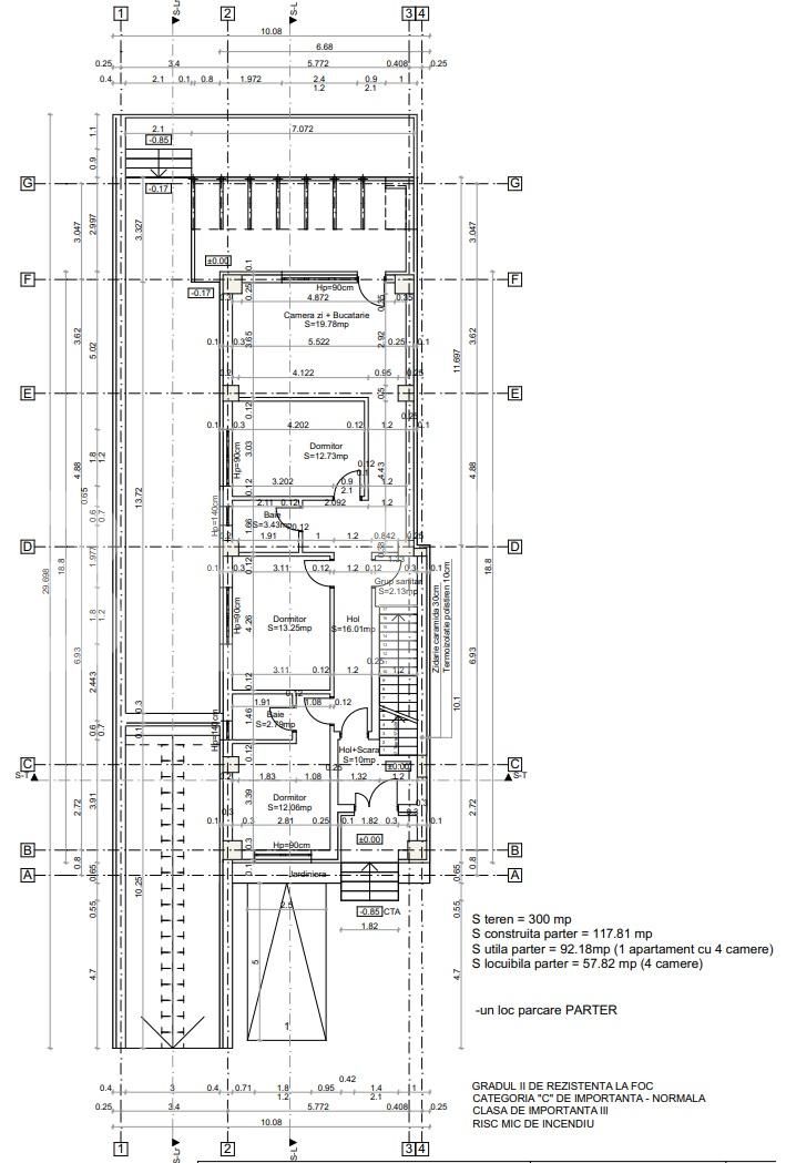
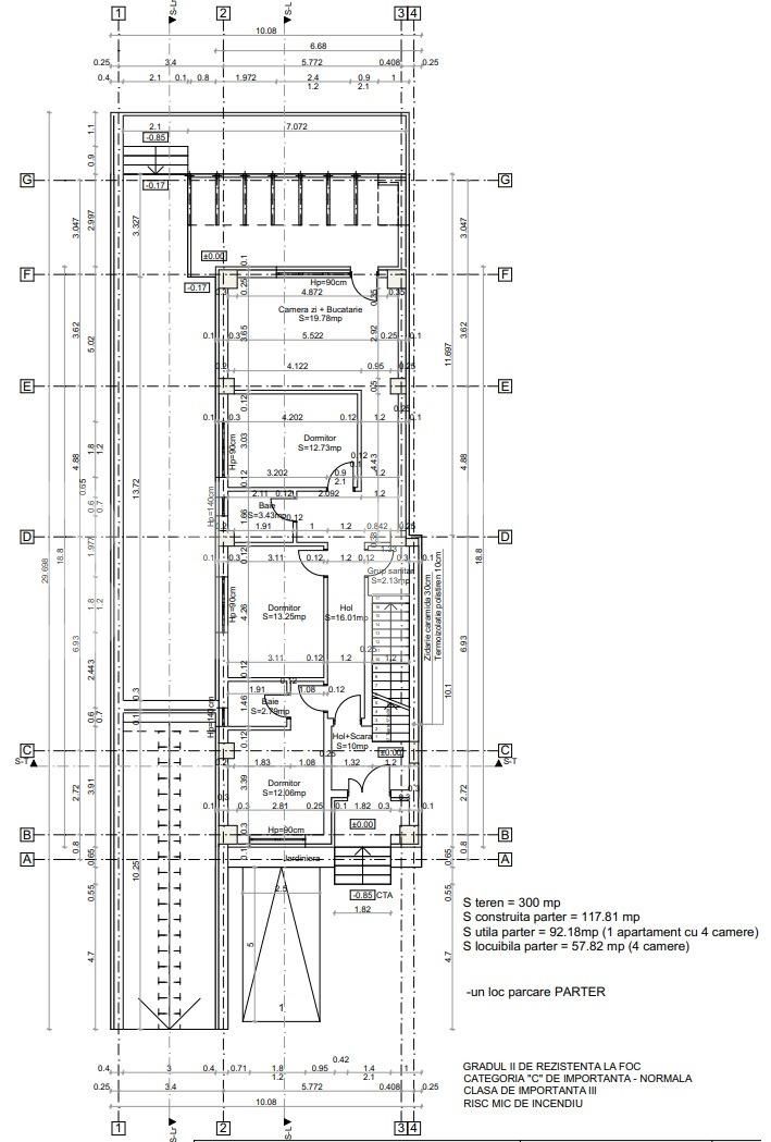
Nr. camere: 4
Suprafață utilă: 92 mp
Nr. băi: 2
Nr. balcoane: 1
Etaj: Parter /2
Boxă la subsol: Nu
Tip compartimentare: Decomandat
Vechime apartament: Nou
Tip imobil: Bloc de apartamente
Dotări: Nemobilat
Anul construcției: 2022
Tip finisaj: Semifinisat
Modalitate vânzare: În rate la constructor, Credit bancar, Cash
Link-uri utile
Linkuri rapide filtrate după cele mai căutate zone și numărul de camere