Apartament de vanzare 4 camere – Universitate | LUX | Renovare completa 2024
Oferta accesata nu mai este disponibilă.
Poți vedea oferte din aceeași categorie sau poți contacta agentul pentru o oferta personalizată.
VEZI OFERTE SIMILARE
Apartament de vanzare 4 camere – Universitate | LUX | Renovare completa 2024

Apartament cu 3 camere, ultracentral - langa Parcul Cismigiu si Calea Victoriei
Linkuri rapide filtrate după cele mai căutate zone și numărul de camere
Anunță-mă când scade prețul
Trimite oferta de preț
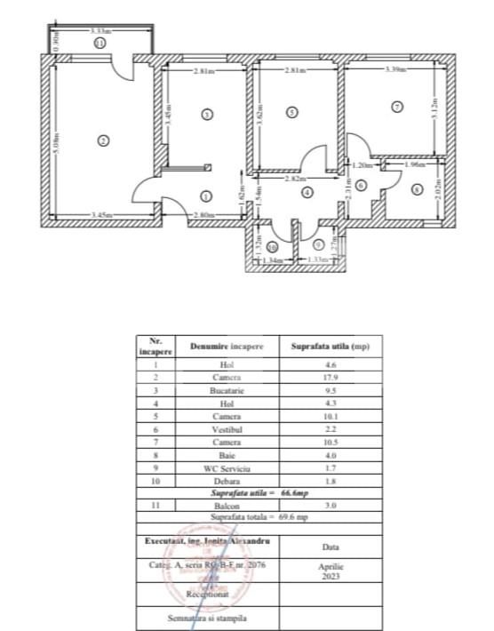
Nr. camere: 3
Suprafață utilă: 70 mp
Nr. băi: 2
Nr. balcoane: 1
Etaj: 2 /10
Locuri de parcare: 1 , In zona
Boxă la subsol: Nu
Tip compartimentare: Decomandat
Vechime apartament: Nou
Tip imobil: Bloc de apartamente
Dotări: Nemobilat
Anul construcției: Inainte de 1990
Tip finisaj: Finisat
Materiale construcție: Beton
Modalitate vânzare: Credit bancar, Cash
Link-uri utile
Linkuri rapide filtrate după cele mai căutate zone și numărul de camere