Apartament 3 camere | Vedere panoramică | Tineretului
Oferta accesata nu mai este disponibilă.
Poți vedea oferte din aceeași categorie sau poți contacta agentul pentru o oferta personalizată.
VEZI OFERTE SIMILARE
Apartament 3 camere 72 mp zona Brancoveanu - 5 min Metrou + centrala + parcare

Apartament 3 camere – Zona Apusului | Ideal pentru renovare după propriul gust
Linkuri rapide filtrate după cele mai căutate zone și numărul de camere
Anunță-mă când scade prețul
Trimite oferta de preț
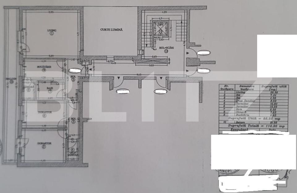
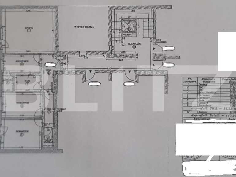
Nr. camere: 3
Suprafață utilă: 90 mp
Nr. băi: 2
Nr. balcoane: 1
Etaj: 3 /10
Locuri de parcare: 1
Boxă la subsol: Nu
Tip compartimentare: Semidecomandat
Vechime apartament: Nou
Tip imobil: Bloc de apartamente
Dotări: Modern/lux
Anul construcției: 2016
Tip finisaj: Modern/lux
Materiale construcție: Beton, Cărămidă
Modalitate vânzare: Credit bancar, Cash
Link-uri utile
Linkuri rapide filtrate după cele mai căutate zone și numărul de camere