Apartament 3 camere decomandat | Bloc 2016 | 2 locuri parcare + boxă
Oferta accesata nu mai este disponibilă.
Poți vedea oferte din aceeași categorie sau poți contacta agentul pentru o oferta personalizată.
VEZI OFERTE SIMILARELinkuri rapide filtrate după cele mai căutate zone și numărul de camere
Anunță-mă când scade prețul
Trimite oferta de preț
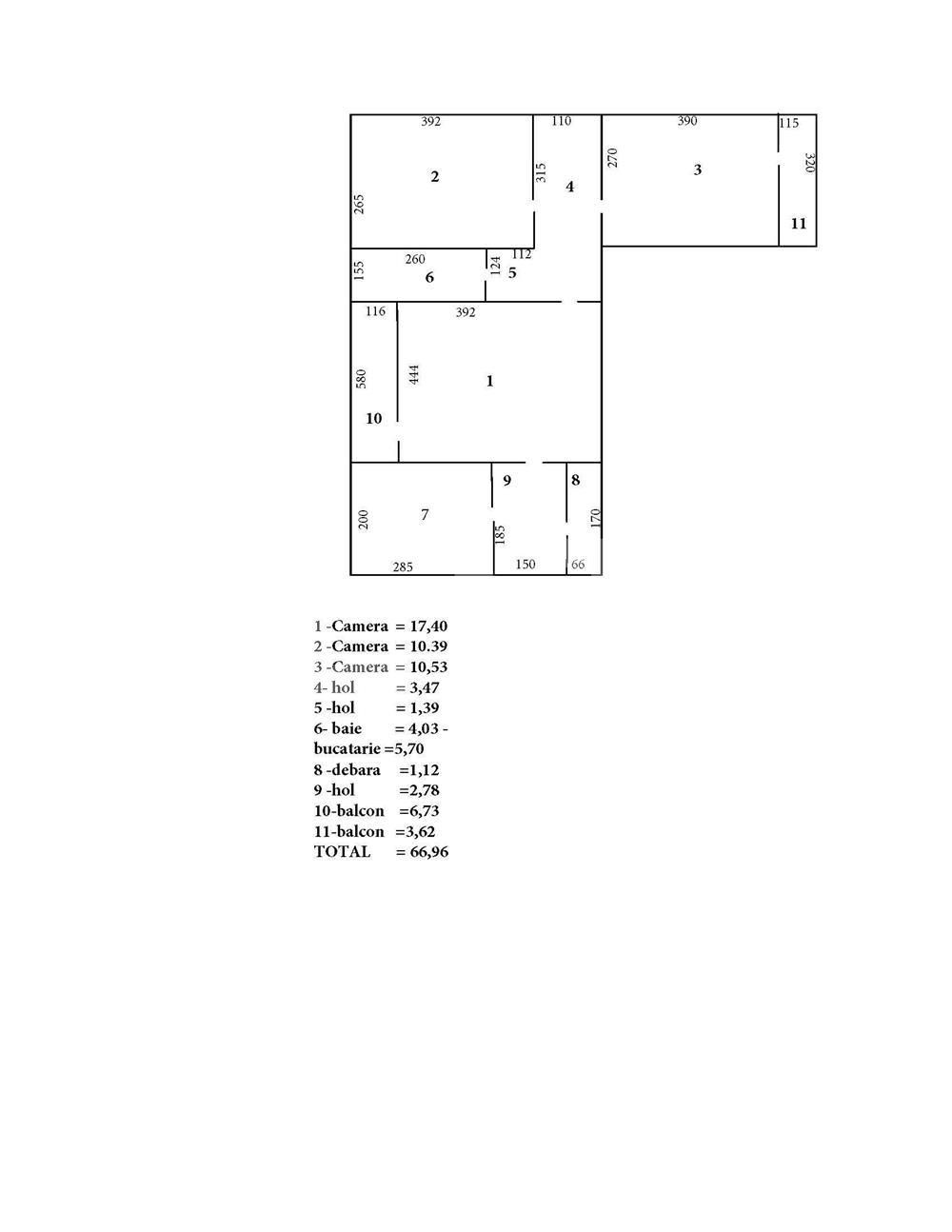
Nr. camere: 3
Suprafață utilă: 67 mp
Nr. băi: 1
Nr. balcoane: 2
Etaj: 7 /10
Boxă la subsol: Nu
Tip compartimentare: Semidecomandat
Vechime apartament: Vechi
Tip imobil: Bloc de apartamente
Dotări: Nemobilat
Anul construcției: Inainte de 1990
Tip finisaj: Renovabil
Materiale construcție: Beton
Link-uri utile
Linkuri rapide filtrate după cele mai căutate zone și numărul de camere