Apartament 3 camere, 86 mp, zona Unirii
Oferta accesata nu mai este disponibilă.
Poți vedea oferte din aceeași categorie sau poți contacta agentul pentru o oferta personalizată.
VEZI OFERTE SIMILARE
Apartament cu 3 camere în Complex Rezidențial Băneasa, lângă Grădina Zoologică

Investiție Excepțională-Apartament 3 camere, 82 mp, Central-Metro Universitate
Linkuri rapide filtrate după cele mai căutate zone și numărul de camere
Anunță-mă când scade prețul
Trimite oferta de preț
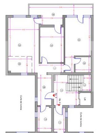
Nr. camere: 3
Suprafață utilă: 90 mp
Nr. băi: 2
Nr. balcoane: 1
Etaj: 2 /4
Locuri de parcare: 2
Boxă la subsol: Nu
Tip compartimentare: Semidecomandat
Vechime apartament: Nou
Tip imobil: Bloc de apartamente
Dotări: Nemobilat
Anul construcției: 2022
Tip finisaj: Modern/lux
Materiale construcție: Beton, Cărămidă
Modalitate vânzare: Credit bancar, Cash
Link-uri utile
Linkuri rapide filtrate după cele mai căutate zone și numărul de camere