Va propunem un apartament exclusivist in zona de Bussiness a Bucurestiului, localizat in Pipera la doar 5 minute de statia de metrou Pipera. La doar 5 minute cu masina de mall Promenada, Parcul Herastrau, in proximitate se afla de asemenea, cele mai cunoscute scoli si gradinite internationale (Olga Gudynn, Mark Twain, etc)
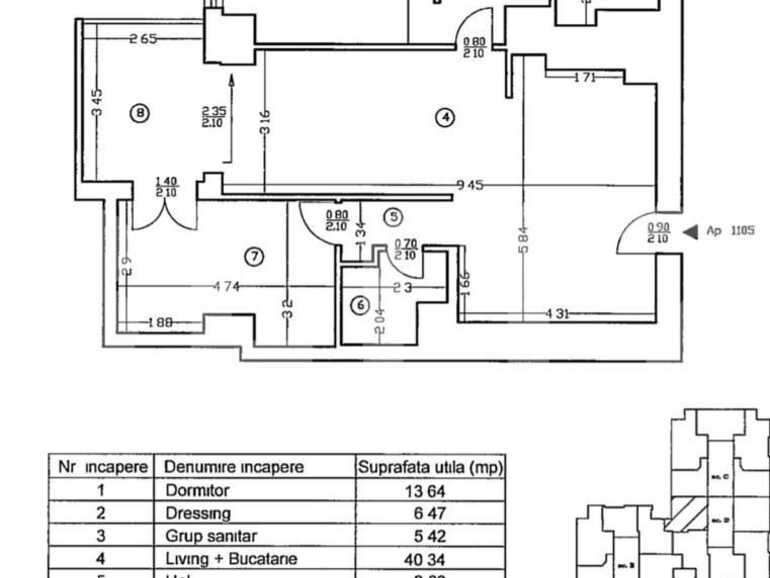
Penthouse-ul este decomandat are un living cu bucatarie open space, 2 dormitoare, 2 grupuri sanitare (ambele bai sunt dotate cu cada), o camera de dressing si o terasa de 10 mp (care poate fi accesata din living si dintr-un dormitor).
Se afla la etajul 11 din 16, avand o panorama superba asupra skyline-ului Pipera. Ferestrele din podea pana in tavan ii confera luminozitate naturala.
Incalzirea se face cu centrala de apartament și calorifere, clasa energetica fiind A.
Pentru un plus de confort penthouse-ul a fost dotat cu aparatura smart home- lumina si aparatele de aer conditionat din toate camerele putand fi controlate prin telecomanda si de pe telefon.
Bucataria este utilata cu electrocasnice de lux: frigider, plita cuptor, microunde, masina spalat vase, racitor de vinuri (proprietarul fiind un pasionat al acestora), espressor cafea, ceainic electric.
In living exista un smart TV Philips cu o diagonala de 163 cm, un semineu, precum si un scaun de masaj de ultima generatie. De asemenea, canapeaua extensibila se poate transforma intr-un pat queen size.
Dormitorul matrimonial (20 mp) are un pat king size (200 x200), un dressing, o baie proprie dotata cu cada, smart tv cu diag 123 cm.
Cel de-al doilea dormitor are 14 mp si include un dressing propriu, un pat queen size, smart TV cu diag 123 cm, un birou si se afla langa cea de-a doua baie.
Camera de dressing are 7 mp si este complet mobilată, oferind un spatiu imens de depozitare, ideal pentru orice familie.
in cadrul complexului se gasesc numeroase restaurante, cafenele, gradinita/afterschool, loc de joaca, piscina si sala de sport, clinica, farmacie.
Complexul are paza si supaveghere video 24/7.
Recomandam acest apartament unai familii cu 1 sau 2 copii care doresc sa se bucure de toate beneficiile aduse de aceasta proprietate.
Pentru a va convinge, va asteptam la vizionare.