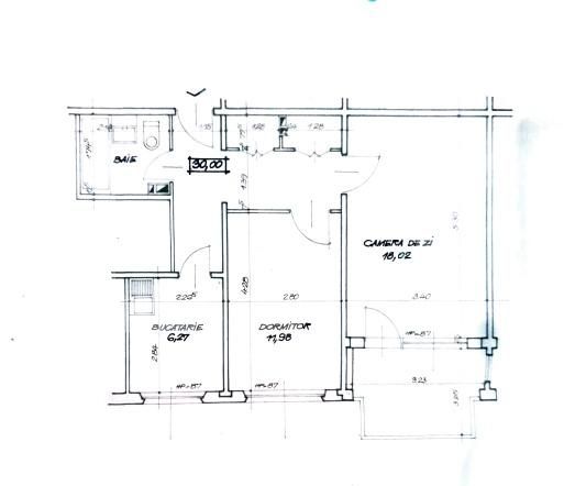
Apartament cu 2 camere - zona obor
Oferta accesata nu mai este disponibilă.
Poți vedea oferte din aceeași categorie sau poți contacta agentul pentru o oferta personalizată.
VEZI OFERTE SIMILARELinkuri rapide filtrate după cele mai căutate zone și numărul de camere
Anunță-mă când scade prețul
Trimite oferta de preț
Nr. camere: 2
Suprafață utilă: 53 mp
Nr. băi: 1
Nr. balcoane: 1
Etaj: 9 /10
Boxă la subsol: Nu
Tip compartimentare: Decomandat
Vechime apartament: Vechi
Tip imobil: Bloc de apartamente
Dotări: Mobilat/utilat
Anul construcției: Inainte de 1990
Tip finisaj: Finisat
Materiale construcție: Beton
Modalitate vânzare: Credit bancar, Cash
Link-uri utile
Linkuri rapide filtrate după cele mai căutate zone și numărul de camere