Duplex modern, 95 mp utili+ 40 mp gradina Rasnov, Brasov
Oferta accesata nu mai este disponibilă.
Poți vedea oferte din aceeași categorie sau poți contacta agentul pentru o oferta personalizată.
VEZI OFERTE SIMILARE
Casă de vânzare în cartierul Izvor, comuna Tărlungeni, la doar 3 km de Brașov

Casă cu poziționare foarte bună, teren 1152 mp, suprafață utilă 200 mp în Codlea
Linkuri rapide filtrate după cele mai căutate zone și numărul de camere
ID: BLITZ 72122CV
Cartier: 15 NoiembriePreț/mp: 1.681 €
Actualizat: 08.02.2022
Rata lunară: 1.018,14 €
Anunță-mă când scade prețul
Trimite oferta de preț
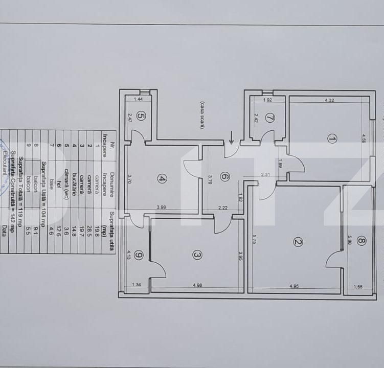
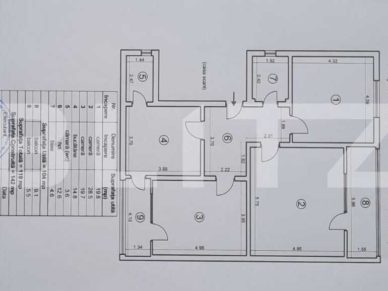
Suprafață casă: 119 mp
Teren: 353 mp
Număr de camere: 3
Nr. bucătării: 1
Nr. băi: 2
Niveluri: Etaj 1, Mansardă
Locuri de parcare: 1
Vechime casă: Veche
Destinație: De locuit, Birouri/comercial, De vacanță
Dotări: Parțial mobilat/utilat
Tip finisaj: Finisat
Materiale construcție: Beton
Tip acoperiș: Terasă
Modalitate vânzare: Credit bancar, Cash
An construcție: Inainte de 1990
Link-uri utile
Linkuri rapide filtrate după cele mai căutate zone și numărul de camere