Apartamente spațioase cu 3 camere, balcon și dressing – bloc nou în Ghimbav
Oferta accesata nu mai este disponibilă.
Poți vedea oferte din aceeași categorie sau poți contacta agentul pentru o oferta personalizată.
VEZI OFERTE SIMILARE
Apartamente spațioase cu 3 camere, balcon și dressing – bloc nou în Ghimbav

Vanzare urgenta - Apartament cu 4 camere, 76 mp, zona Centrala -Brasov - 118.000
Linkuri rapide filtrate după cele mai căutate zone și numărul de camere
Anunță-mă când scade prețul
Trimite oferta de preț
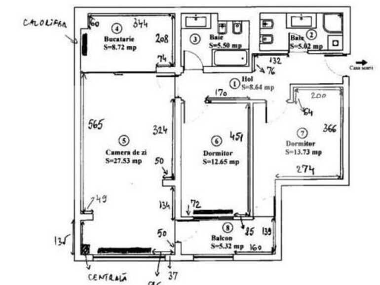
Nr. camere: 3
Suprafață utilă: 87 mp
Nr. băi: 2
Nr. balcoane: 1
Etaj: 4 /10
Locuri de parcare: 1
Boxă la subsol: Nu
Tip compartimentare: Decomandat
Vechime apartament: Nou
Tip imobil: Bloc de apartamente
Dotări: Mobilat/utilat
Anul construcției: 2016
Tip finisaj: Modern/lux
Materiale construcție: Beton, Cărămidă
Modalitate vânzare: Credit bancar, Cash
Link-uri utile
Linkuri rapide filtrate după cele mai căutate zone și numărul de camere