Apartament 3 camere decomandat | 57 mp | Bartolomeu | Pivniță 15 mp | Parcare
Oferta accesata nu mai este disponibilă.
Poți vedea oferte din aceeași categorie sau poți contacta agentul pentru o oferta personalizată.
VEZI OFERTE SIMILARE
Apartament 3 camere decomandat | 57 mp | Bartolomeu | Pivniță 15 mp | Parcare

Apartament 4 camere Tractorul/ 2 bai/ 2 spatii de depozitare/etaj intermediar
Linkuri rapide filtrate după cele mai căutate zone și numărul de camere
Anunță-mă când scade prețul
Trimite oferta de preț
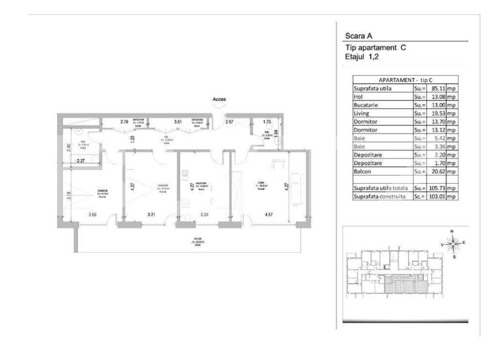
Nr. camere: 3
Suprafață utilă: 85 mp
Nr. băi: 2
Nr. balcoane: 1
Etaj: 1 /3
Locuri de parcare: 1
Tip compartimentare: Decomandat
Vechime apartament: Nou
Tip imobil: Bloc de apartamente
Dotări: Nemobilat
Anul construcției: 2024
Tip finisaj: Modern/lux
Link-uri utile
Linkuri rapide filtrate după cele mai căutate zone și numărul de camere