Super ofertă! Apartament 2 camere – 48 mp, mobilat și utilat complet, etaj 2/4
Oferta accesata nu mai este disponibilă.
Poți vedea oferte din aceeași categorie sau poți contacta agentul pentru o oferta personalizată.
VEZI OFERTE SIMILARELinkuri rapide filtrate după cele mai căutate zone și numărul de camere
Anunță-mă când scade prețul
Trimite oferta de preț
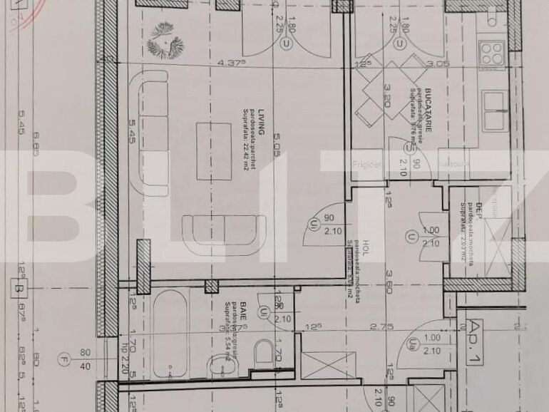
Nr. camere: 2
Suprafață utilă: 65 mp
Nr. băi: 1
Etaj: Demisol /4
Boxă la subsol: Nu
Tip compartimentare: Decomandat
Vechime apartament: Nou
Tip imobil: Bloc de apartamente
Dotări: Parțial mobilat/utilat
Anul construcției: 2016
Tip finisaj: Finisat
Link-uri utile
Linkuri rapide filtrate după cele mai căutate zone și numărul de camere