Apartament spațios și luminos în zona centrală – dublă orientare
ID: BLITZ 174104AV
Cartier: IndependențeiPreț/mp: 1.901 €
Actualizat: 27.04.2026
Rata lunară: 624,63 €
Anunță-mă când scade prețul
Trimite oferta de preț
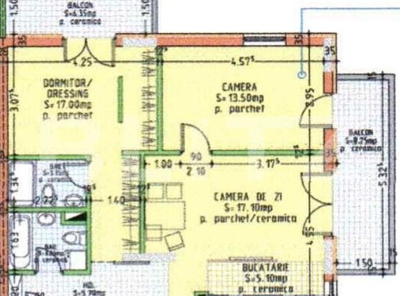
Nr. camere: 3
Suprafață utilă: 64.55 mp
Nr. băi: 2
Nr. balcoane: 2
Etaj: 7 /11
Tip compartimentare: Decomandat
Vechime apartament: Nou
Tip imobil: Bloc de apartamente
Dotări: Nemobilat
Anul construcției: Inainte de 1990
Tip finisaj: Finisat
Evoluție Indice Blitz:
Apartament 4 camere | Etaj 1 | 2 băi cu geam | Complet mobilat – zona Sanovil
Apartament spațios, 80 mp utili + terasă 60 mp | Etaj 3 | 2 parcări incluse
Link-uri utile
Linkuri rapide filtrate după cele mai căutate zone și numărul de camere

