Apartament superb 3 camere, zona ideala, Bistrita
Anunță-mă când scade prețul
Trimite oferta de preț
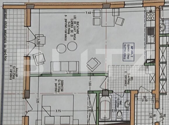
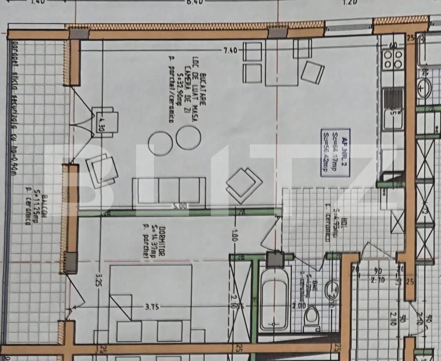
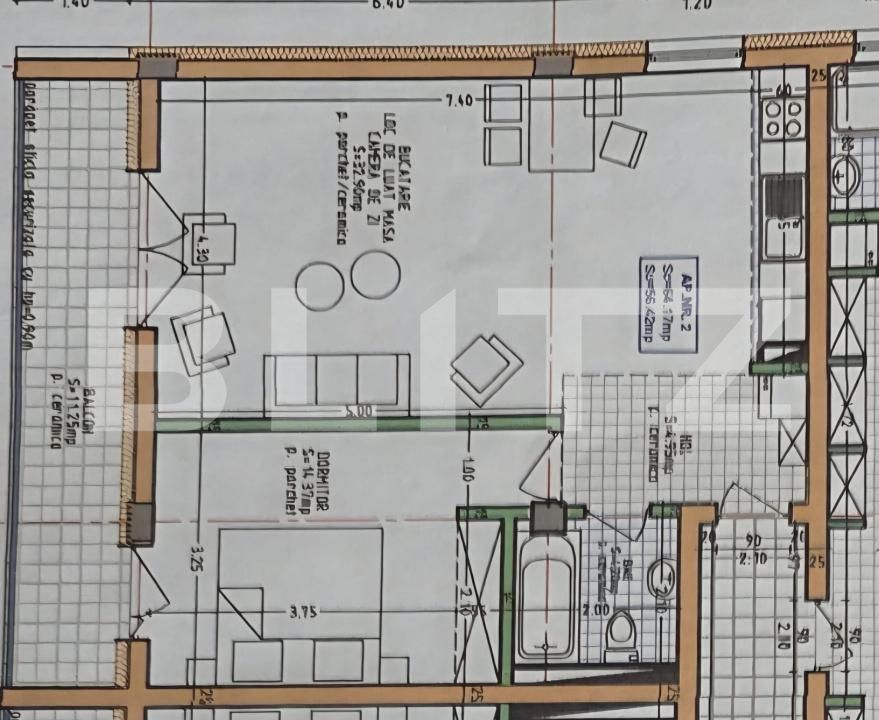
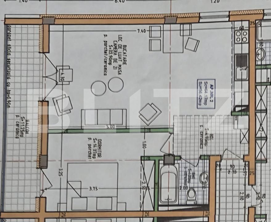
Nr. camere: 2
Suprafață utilă: 56.4 mp
Nr. băi: 1
Etaj: 1 /4
Tip compartimentare: Decomandat
Vechime apartament: În construcție
Tip imobil: Bloc de apartamente
Dotări: Nemobilat
Anul construcției: 2026
Tip finisaj: Finisat
Evoluție Indice Blitz:
Apartament modern cu 2 camere, construcție nouă 2024 – zona Pensiunea Morariu
Apartament decomandat cu 3 camere, 2 balcoane, boxa, uscator. Etaj 3. BECLEAN
Apartament cu 2 camere, decomandat, etaj 6, cu lift, zona HAN/Spitalul Judetean
Link-uri utile
Linkuri rapide filtrate după cele mai căutate zone și numărul de camere


