Apartament 3 camere, parter înalt, renovat complet-ideal locuință sau investiție
Oferta accesata nu mai este disponibilă.
Poți vedea oferte din aceeași categorie sau poți contacta agentul pentru o oferta personalizată.
VEZI OFERTE SIMILARE
Apartament 3 camere, parter înalt, renovat complet-ideal locuință sau investiție

Apartament modern cu 2 camere, construcție nouă 2024 – zona Pensiunea Morariu
Linkuri rapide filtrate după cele mai căutate zone și numărul de camere
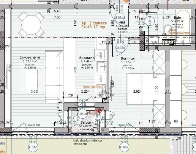
ID: BLITZ 147026AV
Cartier: Calea MoldoveiPreț/mp: 1.913 €
Actualizat: 13.05.2025
Rata lunară: 477,15 €
Anunță-mă când scade prețul
Trimite oferta de preț
Nr. camere: 2
Suprafață utilă: 49 mp
Nr. băi: 1
Nr. balcoane: 1
Etaj: 4 /4
Locuri de parcare: 1
Tip compartimentare: Decomandat
Vechime apartament: Nou
Tip imobil: Bloc de apartamente
Dotări: Nemobilat
Anul construcției: 2024
Tip finisaj: Finisat
Link-uri utile
Linkuri rapide filtrate după cele mai căutate zone și numărul de camere