Apartament 3 camere, parter înalt, renovat complet-ideal locuință sau investiție
Oferta accesata nu mai este disponibilă.
Poți vedea oferte din aceeași categorie sau poți contacta agentul pentru o oferta personalizată.
VEZI OFERTE SIMILARE
Apartament 3 camere, parter înalt, renovat complet-ideal locuință sau investiție

Apartament modern cu 2 camere, construcție nouă 2024 – zona Pensiunea Morariu

Apartament decomandat cu 3 camere, 2 balcoane, boxa, uscator. Etaj 3. BECLEAN
Linkuri rapide filtrate după cele mai căutate zone și numărul de camere
ID: BLITZ 136741AV
Cartier: Calea MoldoveiPreț/mp: 1.680 €
Actualizat: 17.05.2024
Rata lunară: 419,04 €
Anunță-mă când scade prețul
Trimite oferta de preț
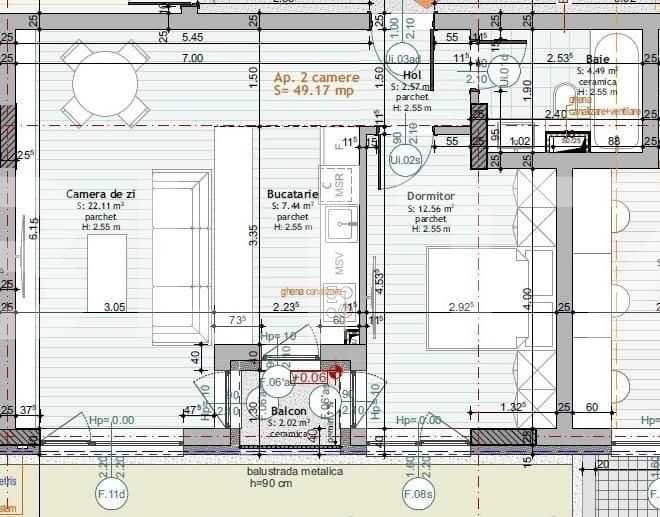
Nr. camere: 2
Suprafață utilă: 49 mp
Nr. băi: 1
Nr. balcoane: 1
Etaj: Parter /4
Locuri de parcare: 1
Boxă la subsol: Nu
Tip compartimentare: Decomandat
Vechime apartament: Nou
Tip imobil: Bloc de apartamente
Dotări: Nemobilat
Anul construcției: 2024
Tip finisaj: Finisat
Materiale construcție: Beton, Cărămidă
Modalitate vânzare: Credit bancar, Cash
Link-uri utile
Linkuri rapide filtrate după cele mai căutate zone și numărul de camere